|

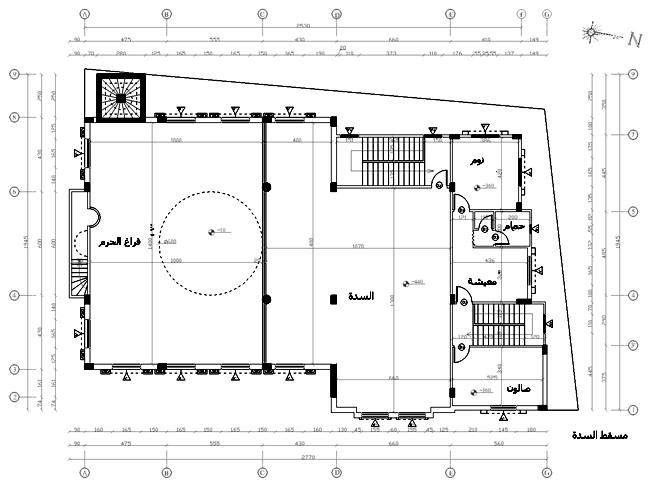
يقع المسجد في بلدة تير معلة في شمال محافظة حمص على بعد /10/كم , على أرض مساحتها /500/م2 تقريبا , تم تصميم المسجد على طراز المسجد النبوي بقبته الخضراء وواجهاته مع إكسائه بالحجر ومادة جي آر سي , ويتألف المسجد من الحرم والسدة وقسم منفصل للإمام . الطابق الأرضي عبارة عن حرم بمساحة /232/م2 يتسع تقريبا لحوالي /300/ مصلي , ويحتوي على قبة بقطر ستة أمتار تستند على عمودين فقط شبيه بالقبة الخضراء , كما يحتوي الطابق الأرضي على موضأ وحمامات بمساحة /35/م2 , وعلى مكتبة منفصلة بمساحة 22م2 , ويحتوي أيضا على مصلى صيفي بمساحة /76/م2. السدة عبارة عن مصلى بمساحة /70/م2 تتسع/ 100/ مصلي مع درج خاص بها بمساحة /18/م2 . المئذنة يبلغ طولها ستة وعشرون متر على طراز المسجد النبوي أيضا .
|
|