الصفحة الأولى كافة المشاريع سجل الزوار من نحن اتصل بنا  
القائمة الرئيسية
رمز نقطي الصفحة الأولى
رمز نقطي الدراسات الهندسية
رمز نقطي المقاسم المعدة للبيع
رمز نقطي المقاسم المعدة للإيجار
رمز نقطي التدعيم والترميم
رمز نقطي أعمال المساجد
رمز نقطي التنفيذ بالأمانة
رمز نقطي أعمال قيد التنفيذ
رمز نقطي أعمال منفذة
رمز نقطي معلومات عامة
رمز نقطي مواقع صديقة
رمز نقطي أخبارنا
رمز نقطي سجل الزوار
رمز نقطي من نحن
رمز نقطي اتصل بنا

 
بحث في المشاريع
التصنيف
 
النوع
اسم المشروع
  

 
 
القائمة الإخبارية
اضف بريدك للحصول على تحديثات و أخبار موقعنا
 
الاسم الكامل:
البريد الالكتروني :

 
أحوال الطقس
 
 
 
 
 
 
 
 
صفحة جديدة 1
الصفحة الأولى > أعمال المساجد > مسجد نور اليقين.. 
 
تفاصيل المشروع
 

 


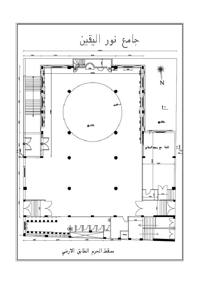
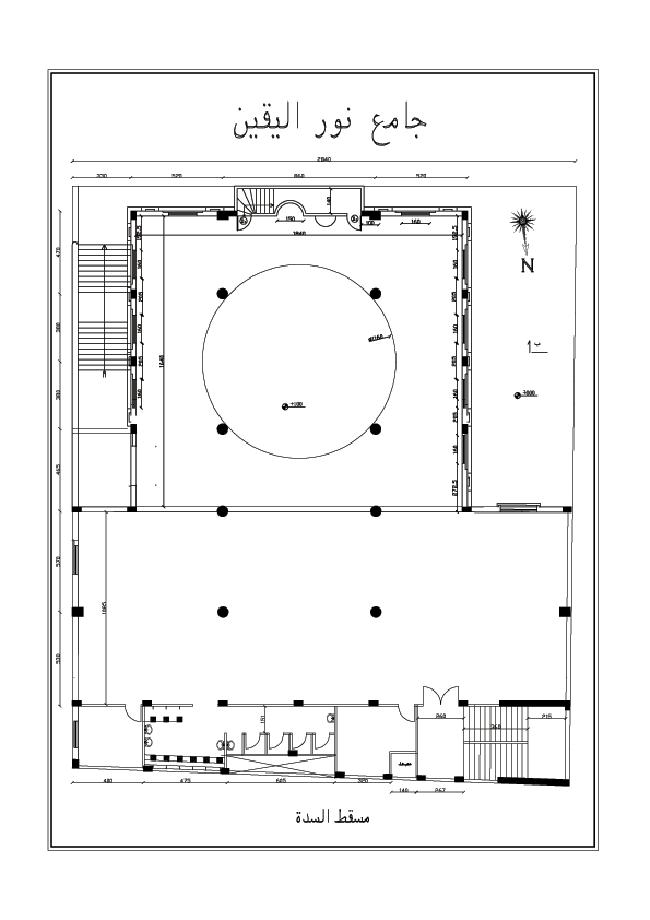
تقع أرض جامع نور اليقين على شارع الستين من الجهة الجنوبية الشرقية لمدينة حمص وهو على خط جامع الحمزة وإلى الغرب منه , وقد وهبت أرضه من قبل الحاج وجيه السباعي مسجداً وذلك بظل الشيخ محمود شاهرلي رحمه الله منذ عام (1979م) وآنذاك لم يكن هناك عمران بالمنطقة بل كانت أرضاً زراعية ومن كرمه تعالى ان هذه الأرض مدّ الأتوستراد بمحازاتها وامتد العمران حولها , وهي بمساحة (1000) متر مربع وصمم المسجد بطابق تحت الأرض , والحرم الرئيسي بمساحة (560) مترمربع , وفيه سدة بمساحة (300) متر مربع ومعهد شرعي في القبو بمساحة (800) متر مربع , وقد تبرع المرحوم بكامل البناء وأوصى باتمام البناء كاملاً أعاننا الله على ذلك وتقبل منه ومنا .

 

 

 

 

 

 

صور و مخططات المشروع
 
صور مراحل تطور المشروع
 
تفاصيل المشروع

النوع : مساجد

التصنيف: أعمال المساجد

تاريخ الانتهاء :0000-00-00

 
 
 
 
 
 
 


© All Rights Reserved for alwajieh.
2717248