الصفحة الأولى كافة المشاريع سجل الزوار من نحن اتصل بنا  
القائمة الرئيسية
رمز نقطي الصفحة الأولى
رمز نقطي الدراسات الهندسية
رمز نقطي المقاسم المعدة للبيع
رمز نقطي المقاسم المعدة للإيجار
رمز نقطي التدعيم والترميم
رمز نقطي أعمال المساجد
رمز نقطي التنفيذ بالأمانة
رمز نقطي أعمال قيد التنفيذ
رمز نقطي أعمال منفذة
رمز نقطي معلومات عامة
رمز نقطي مواقع صديقة
رمز نقطي أخبارنا
رمز نقطي سجل الزوار
رمز نقطي من نحن
رمز نقطي اتصل بنا

 
بحث في المشاريع
التصنيف
 
النوع
اسم المشروع
  

 
 
القائمة الإخبارية
اضف بريدك للحصول على تحديثات و أخبار موقعنا
 
الاسم الكامل:
البريد الالكتروني :

 
أحوال الطقس
 
 
 
 
 
 
 
 
صفحة جديدة 1
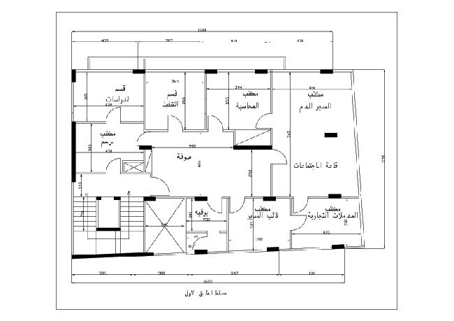
الصفحة الأولى > الدراسات الهندسية > العقار -622 - منطقة 6.. 
 
تفاصيل المشروع
 

 


 

عقار مرخص وفق المخططات المرفقة وسيتم إنجازه في فترة لاحقة

 

 

 

 

 

صور و مخططات المشروع
 
صور مراحل تطور المشروع
 
تفاصيل المشروع

النوع : أبراج

التصنيف: الدراسات الهندسية

تاريخ الانتهاء :0000-00-00

 
 
 
 
 
 
 


© All Rights Reserved for alwajieh.
2717415