الصفحة الأولى كافة المشاريع سجل الزوار من نحن اتصل بنا  
القائمة الرئيسية
رمز نقطي الصفحة الأولى
رمز نقطي الدراسات الهندسية
رمز نقطي المقاسم المعدة للبيع
رمز نقطي المقاسم المعدة للإيجار
رمز نقطي التدعيم والترميم
رمز نقطي أعمال المساجد
رمز نقطي التنفيذ بالأمانة
رمز نقطي أعمال قيد التنفيذ
رمز نقطي أعمال منفذة
رمز نقطي معلومات عامة
رمز نقطي مواقع صديقة
رمز نقطي أخبارنا
رمز نقطي سجل الزوار
رمز نقطي من نحن
رمز نقطي اتصل بنا

 
بحث في المشاريع
التصنيف
 
النوع
اسم المشروع
  

 
 
القائمة الإخبارية
اضف بريدك للحصول على تحديثات و أخبار موقعنا
 
الاسم الكامل:
البريد الالكتروني :

 
أحوال الطقس
 
 
 
 
 
 
 
 
صفحة جديدة 1
الصفحة الأولى > الدراسات الهندسية > مسجد العز بن عبد السلام.. 
 
تفاصيل المشروع
 

 



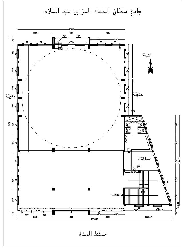
يقع مسجد الإمام العز بن عبد السلام سلطان العالماء في منطقة الوعر الجديدة في الجزيرة الرابعة ضمن تجمع سكني لمجموعة من الأبراج , وهو بمساحة /
1200/ متر مربع تقريبا ويتألف من طابق تحت أرضي يضم حرم النساء مع ملحقاته وصالة للعزاء والفعاليات الثقافية الإسلامية مع ملحقاتها وهي بمساحة /400/ متر مربع والطابق الأرضي حرم للرجال مع ملحقاته وسقفه قبة واحدة ترتكز على الأعمدة المحيطة للمسجد وأيضا للمسجد سدة وملحقاتها .


سلطان العلماء الإمام العز بن عبد السلام

هو العز بن عبد السلام السلمي ويكنى بأبي محمد , ولد بدمشق سنة /
577/ هجرية الموافق /1181/ ميلادية , وتوفي سنة /660/ هجرية الموافق /1262/ ميلادية في مصر , لقب بعز الدين  , وعرف بين الناس بالعز بن عبد السلام , كما لقب بسلطان العلماء وبائع الأمراء .
عاش العز بن عبد السلام في عصر يشبه عصرنا هذا من حيث جمع المتناقضات من صلاح وفساد , ووحدة وتمزق وعلم وجهل وتكالب على السلطة وتناحر عليها مع بطولات نادرة وانتصارات خارقوة وقيادات حكيمة , فقد عايش دولة بني أيوب التي أنسأها صلاح الدين , وكانت دولة قوية , ولكن في آخر عصرها تنافس أمراؤها على الملك , وأصبح بعضهم يقاتل بعضا حتى لجأ بعضهم إلى التحالف مع الصليبين من أجل أن يفرغ لقتال إخوانه , وبني عمه .
عاش العز بن عبد السلام في دمشق في كنف أسرة فقيرة مغمورة , وابتدأ العلم في سن متأخرة  , وكانت دمشق في ذلك العصر حاضنة العلم من الأقطار كافة فتوجه إلى طلب العلم بجد وساعده على ذلك ذكاؤه الخارق , قصد العز العلماء , وجلس في حلقاتهم ينهل علومهم , ويكب الدراسة والفهم والإستيعاب فاجتاز العلوم بمدة يسيرة وأقبل على العلم حتى صار أعلم أهل زمانه , ومن أعبد خلق الله , فقد اختار العز فطاحل العلماء العاملين فأخذ علمهم وتأثر بهم وبأخلاقهم الفاضلة , وسلوكهم الرفيع في الحياة , فجمع بين العلم والأخلاق والسلوك والعمل , وجمع العز في تحصيله بين العلوم الشرعية والعلوم العربية , فدرس التفسير وعلوم القرآن , والفقه وأصوله والحديث وعلومه , واللغة والتصوف , والنحو والبلاغة وعلم الخلاف , وكان أكثر تحصيله للعلم في دمشق ولكنه ارتحل أيضا إلى بغداد للإزدياد من العلم وأقام بها أشهرا يأخذ يأخذ العلوم والمعارف ثم عاد دمشق .
تولى العز رحمه الله الإفتاء والتدريس والخطابة والقضاء وأتبعه القيام بالأمر بالمعروف والنهي عن المنكر .
ترك الشيخ تراثا علميا ضخما في علوم التفسير والحديث والسيرة والعقيدة والفقه وأصول الفقه والزهد والتصوف وتلاميذ جهابذة وحارب البدعة وأحيا السنة .
عرف العز رحمه الله بورعه وزهده وتواضعه وجوده وانفاقه وأعظم ما تميزبه جرأته بالأمر بالمعروف والنهي عن المنكر , وشارك العز رحمه الله بالجهاد بلسانه وحجته وشارك في قتال الصليبين التتار بنفسه فكان يثبت الناس , ويرفع معنوياتهم ويلهب حماسهم .
 

 

 

 

 

أقسام المشروع
   
 
صور و مخططات المشروع
 
صور مراحل تطور المشروع
 
تفاصيل المشروع

النوع : مساجد

التصنيف: الدراسات الهندسية

تاريخ الانتهاء :2011-03-27

 
 
 
 
 
 
 


© All Rights Reserved for alwajieh.
2717380